西秦泉寺(売買 中古一戸建て) | 高知市西秦泉寺 | 高知市周辺の不動産探しは ヤマダ不動産 高知本店

西秦泉寺 | 高知市西秦泉寺の不動産物件

【中古一戸建て】 駐車場あり
価格 3,300万円 (税込)
土讃線 入明駅 徒歩21分
スマホ表示
物件コード:120125
所在地 建物面積
土地面積
間取り 築年月
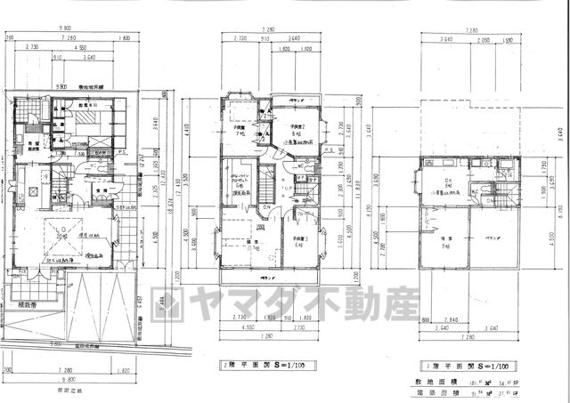
高知県高知市西秦泉寺384番14号 224.22m2
179.71m2
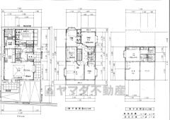
7LDK 1997/07

物件基本情報

物件種目 中古一戸建て
物件名称 西秦泉寺
所在地 高知県高知市西秦泉寺384番14号
交通
土讃線 入明駅 徒歩21分
土讃線 高知駅 徒歩23分
階数 3階建
建物構造 鉄骨造
建ぺい率/容積率 60% / 200%
駐車場 有 (3台)
学校 秦小学校 / 愛宕中学校
設備・条件
  • ガス:個別プロパン
  • 汚水:公共下水
  • 水道:公営水道
  • 浴室1坪以上
  • 二世帯住宅
ヤマダ不動産 高知本店
Tel088-802-8337
お気軽にお問い合わせください。

コメント

◇ファミリー向けのゆとりある注文住宅風3階建て!
◇延床224.22m?・7LDKの広さで、お子さまの成長にも対応。
◇20帖の広々LDKは家族の団らんできますね♪
◇キッチン2カ所・浴室2カ所・トイレ3カ所で朝の混雑や多世代同居もストレスフリー。
◇イオンなど商業施設が徒歩圏内で買い物便利、小学校も徒歩圏だから通学も安心。
◇子育て世代にオススメです♪
◇見学はお気軽にどうぞ。

周辺地図

地図を表示中...
ストリートビュー未対応エリアです。

物件詳細情報

物件用途 居住用 地目 宅地
間取り詳細 - 都市計画 市街化区域
建物向き 用途地域 第二種中高層住居専用地域
土地面積基準 公簿 接道 公道 南 幅員4m (接面9.8m)
土地権利 所有権 私道面積 -
借地条件 - 道路位置指定 -
地代 - 不適合接道 -
建築確認番号 - セットバック -
現況 居住中 国土法届出 不要
引渡時期 期日指定 (2026年5月下旬) 取引態様 一般
設備その他 -
特記事項 -
備考 -
情報更新日 2026/02/10 広告有効期限 2026/02/24
担当者 山崎
電話でお問い合わせ
ヤマダ不動産 高知本店 店舗情報
[所在地] 高知県高知市介良字山ノ後乙1136-1 家電住まいる館 YAMADA 高知本店 1階
[営業時間] 10:00~19:00
[担当] 山崎
Tel088-802-8337
お気軽にお問い合わせください。