四万十町仁井田中古平屋(売買 中古一戸建て) | 高岡郡四万十町仁井田 | 高知市周辺の不動産探しは ヤマダ不動産 高知本店

四万十町仁井田中古平屋 | 高岡郡四万十町仁井田の不動産物件

平成28年に内外装リフォームし、現在賃貸中。購入希望者がいらっしゃった場合は退去のお話できています。内見も可能です。敷地広く180㎡以上ありますので、駐車場にお庭に自在です。
【中古一戸建て】
価格 680万円 (税無)
土讃線 仁井田駅 徒歩13分
スマホ表示
物件コード:71668
所在地 建物面積
土地面積
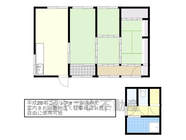
間取り 築年月
高知県高岡郡四万十町仁井田 53.82m2
621.83m2
4DK 1958/01

物件基本情報

物件種目 中古一戸建て
物件名称 四万十町仁井田中古平屋
所在地 高知県高岡郡四万十町仁井田
交通
土讃線 仁井田駅 徒歩13分
階数 1階建
建物構造 木造
建ぺい率/容積率 - / -
駐車場 -
学校 -
設備・条件
  • ガス:個別プロパン
  • 水道:公営水道
  • 専用庭
ヤマダ不動産 高知本店
Tel088-802-8337
お気軽にお問い合わせください。

画像・写真

コメント

平成28年に内外装リフォームし、現在賃貸中。購入希望者がいらっしゃった場合は退去のお話できています。内見も可能です。敷地広く180㎡以上ありますので、駐車場にお庭に自在です。

周辺地図

地図を表示中...
ストリートビュー未対応エリアです。

物件詳細情報

物件用途 居住用 地目 その他
間取り詳細 - 都市計画 区域外
建物向き - 用途地域 指定なし
土地面積基準 公簿 接道 -
土地権利 所有権 私道面積 -
借地条件 - 道路位置指定 -
地代 - 不適合接道 -
建築確認番号 - セットバック -
現況 賃貸中 国土法届出 不要
引渡時期 相談 取引態様 一般
設備その他 -
特記事項 -
備考 平成28年に内外装リフォームし、現在賃貸中。購入希望者がいらっしゃった場合は退去のお話できています。内見も可能です。敷地広く180㎡以上ありますので、駐車場にお庭に自在です。
情報更新日 2026/04/25 広告有効期限 2026/05/09
電話でお問い合わせ
ヤマダ不動産 高知本店 店舗情報
[所在地] 高知県高知市介良字山ノ後乙1136-1 家電住まいる館 YAMADA 高知本店 1階
[営業時間] 10:00~19:00
Tel088-802-8337
お気軽にお問い合わせください。